
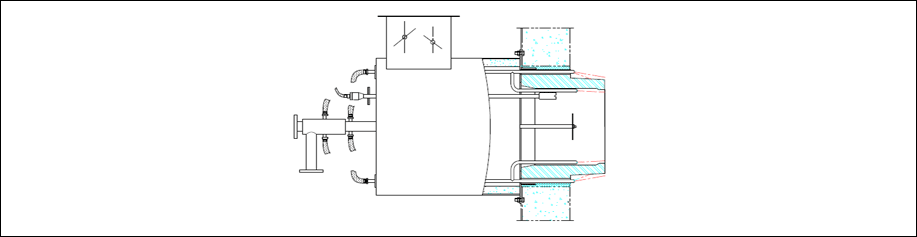
常減壓裝置用燃燒器
1.1 本類型燃燒器適用于常減壓負荷較大、爐管較長的大型立管式加熱爐,單臺燃燒器能量大、火焰高,與爐型匹配。多選用油氣聯合型式,可單燒油或單獨燒氣體燃料,也可同時燒兩種燃料。燃料油多采用微過熱蒸汽進行內混式霧化,在沒有蒸汽的條件下,也可以用壓縮空氣進行替代。
1.2 本系列燃燒器可適用于燃燒器前風壓(即爐底負壓)>70Pa的自然通風,也可適用于燃燒器前風壓<500Pa的機械強制供風,預熱空氣溫度不得超過320℃。
1.3 對油氣聯合燃燒器,當同燒油、氣兩種燃料時,每臺燃燒器的總能量,如果大于設計*大能量,則燃燒效果不好。
常減壓燃燒器設計參數:
| 操作型式 | 強制通風或自然通風 |
| 燃料 | 燃料氣+燃料油 |
| 燃料氣燃燒器前壓力Mpa(表) | 0.1 |
| 助燃空氣溫度(℃) | -30~320 |
| 燃料氣溫度(℃) | >30 |
| 燃料氣重度(kg/NM3) | >0.5 |
| 燃料氣熱值(kcal/NM3) | >6000 |
| 燃料油設計壓力 MPa(表) | 0.5~0.8 |
| 燃料油粘度CST | <60 |
| 霧化蒸汽設計壓力 MPa(表) | 0.6~0.9 |
| 霧化蒸汽設計溫度(℃) | 200~280 |
| 設計發熱量下過剩空氣量(%) | 25 |
| 火焰形狀 | 圓形火焰 |
| 通過燃燒器的抽力損失mmH2O | 90% |
| 所需調節比(*大:*?。?/td> | 3:1 |
| 燃燒方向 | 垂直向上 |
| 安裝位置 | 爐底 |
| 火焰長度(設計發熱量下)m | 2.5-10 |
|
煙氣中NOX濃度 |
≤210ppm |